
































Whole-House Remodel Set (Full Rehab)
Here is a sample of what a Whole-House Remodel (complete gut rehab) Set of drawings should contain. Your specific jurisdiction may ask for more or less. This set was approved without any revisions.
It is only a Digital PDF. You are not receiving a physical product.
This set contains the following (total 47 sheets):
Survey Plan
General Notes Sheet
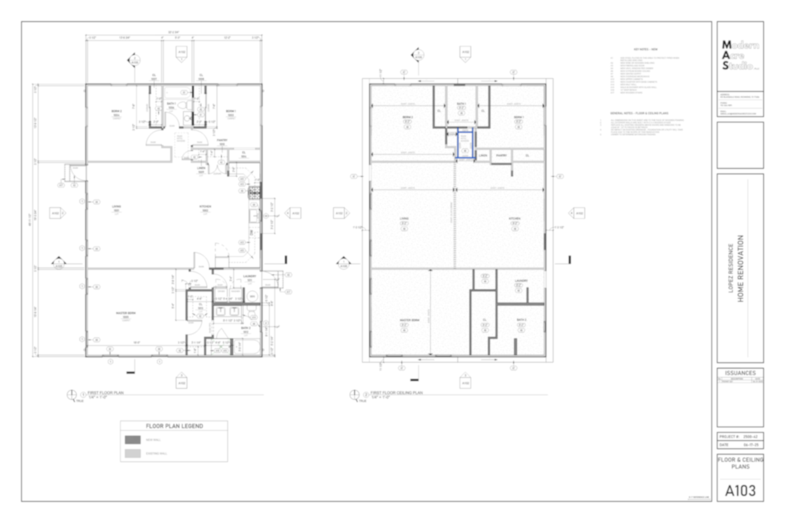
Floor Plan and Details
Reflected Ceiling Plan
Structural Drawings
Elevations & Sections
Plumbing Drawings
Mechanical Drawings and HAP Report
Electrical Drawings
RESCheck Report
Disclaimer: Please do not duplicate this set for permit submission in your area and refer to a licensed professional to make proper modifications. We do not take any liability for any mistakes in this set or any issues that you might incur after using this. This set is sold purely for educational purpose and not for construction.
Since it is a digital product, you are not eligible for money back once you purchased it.
Here is a sample of what a Whole-House Remodel (complete gut rehab) Set of drawings should contain. Your specific jurisdiction may ask for more or less. This set was approved without any revisions.
It is only a Digital PDF. You are not receiving a physical product.
This set contains the following (total 47 sheets):
Survey Plan
General Notes Sheet
Floor Plan and Details
Reflected Ceiling Plan
Structural Drawings
Elevations & Sections
Plumbing Drawings
Mechanical Drawings and HAP Report
Electrical Drawings
RESCheck Report
Disclaimer: Please do not duplicate this set for permit submission in your area and refer to a licensed professional to make proper modifications. We do not take any liability for any mistakes in this set or any issues that you might incur after using this. This set is sold purely for educational purpose and not for construction.
Since it is a digital product, you are not eligible for money back once you purchased it.